Site Specific: Domestic Spolia

architectural/practice, Seoul, Korea, 2020

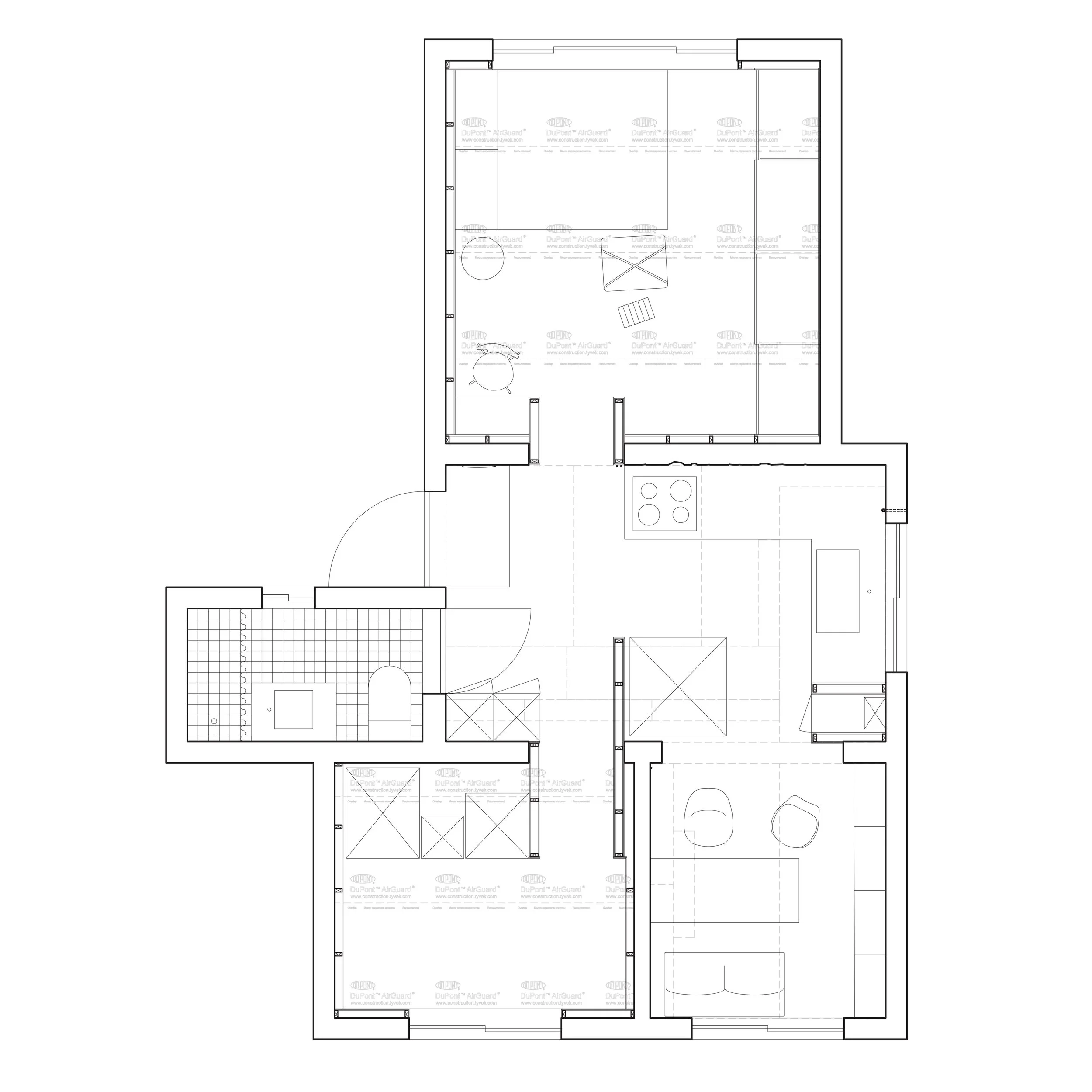
a/p An ordinary, modest rental apartment, typical for Seoul, where an unconscious architectural typicality turns into an edited neutrality. Stripped out, traces of the form-work on the exposed concrete ceilings are visible, brick infill belies the economic efficiencies of construction at scale.

Traces of construction become ‘spolia’, humble elements of architecture reused and allowed to remain visible.

Dupont Tyvek Airguard Reflective, an internal vapour barrier sheet, is used as a finishing material in the bedroom and the multi-purpose room. New internal linings stop short of the ceiling, exposing the foil as domestic spolia. At the same time this material exists as a decorative skin, like the wallpaper chosen for more typical residential interiors.

The informational text on the Tyvek sheet becomes a repeating pattern, not just simple type, and creates a soft irony as a functional ornament. There’s a certain moment where it is hard to draw a line between the typical and everyday and a more atypical architecture.

The ancient Romans built architecture with the spolia of previous construction, reusing the symbols of former temples, while here abstraction is both concrete and ironic.

NOTES

Many thanks to Sungbum Heo at architectural/practice for sharing this project with us.

Posted 4th September 2023