Site Specific: Kiellandsstien Residence

Hoem + Folstad Arkitekter - Hafrsfjord, Stavanger, Norway, 2021

Based in Stavanger in Norway, Elisabeth Hoem and Stig Folstad’s practice generally focuses on residential work, with many of their projects being carefully integrated into existing buildings.

The project presented below is situated within a picturesque Norwegian landscape of fjords and mountains, where new structures have been added alongside an existing house. The new additions create a new, sheltered, outdoor room. The archetypal simplicity of this courtyard grouping is offset by the bold, angular forms of the new arrivals. The detailing and materiality tie the new work back into the vernacular tradition, equalising the old and the new through a dialogue of the ‘alike’ and the ‘unlike’.

HFA A small, detached house in an open fjord landscape, surrounded by fields and residential buildings. The homeowner wanted an extension of the house and outdoor areas that would be more sheltered from the wind and from a busy footpath on the seaward side of the property.

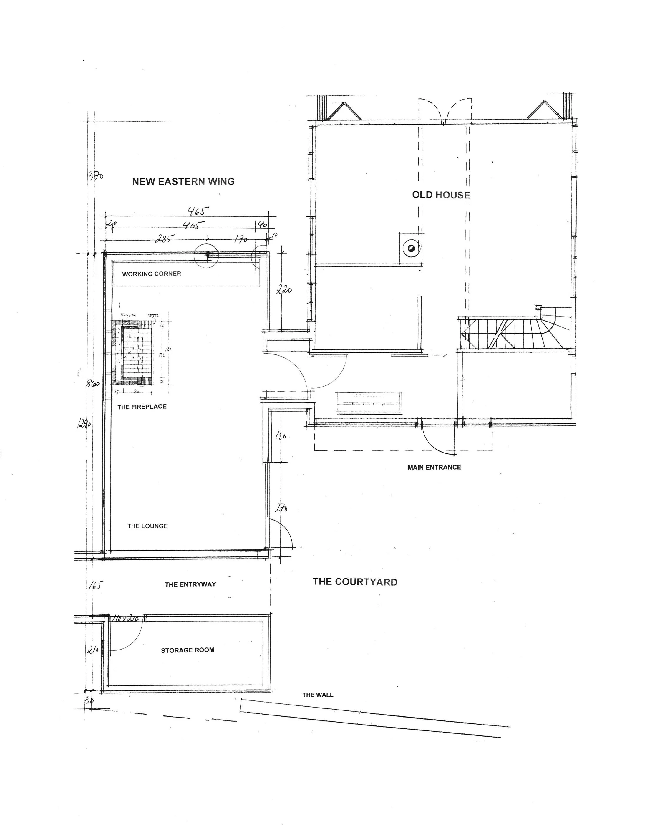
The solution was a closed courtyard where the existing house, new annex and retaining walls shape the courtyard. A pergola construction with a glass roof stands as a solitary element in the outdoor space. The courtyard garden has become an attractive gathering place for the family and friends in the summer months.

The new main access to the house is through a passage in the annex into the courtyard garden. The passage represents a threshold between the open landscape and the closed walled garden. The design is inspired by traditional farm facilities in the area.

The new annex is clad with corten steel plates on all external walls. The roof tiles are recycled from demolished houses in the area. Oiled oak veneer on interior walls. Solid oak on ceilings and floors. An open fireplace is centrally located in the open living room.

NOTES

Many thanks to Stig Folstad for his help in posting this project.

Visit the Hoem + Folstad Arkitekter website here.

Photography © Knut Folstad

Posted 13th February 2026.