Site Specific: Lubetkin Apartment

Studio naama - London, 2022

SN Complete refurbishment of an apartment in Berthold Lubetkin’s now Grade II listed Sivill House, on Columbia Road in East London. Using timber throughout, stripping back areas to reveal the original concrete beams, punching through the bedroom and living room partition wall, and the inclusion of metal structures that link back to the building’s common areas, the apartment is imbued with tactility, colour and light.

Berthold Lubetkin’s now Grade II-listed Sivill House.

Facade detail.

Tower Plan.

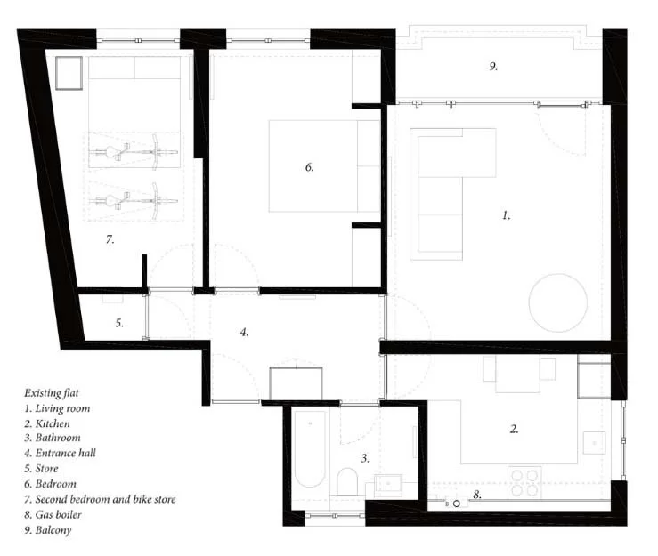
Existing Plan.

Bespoke coat stand axonometrics and material samples.

Kitchen metalwork being fabricated.

Coatstand metalwork being fabricated.

NOTES

Published April 19th 2023.

Many thanks to Studio naama for sharing this project with us.

Completion photographs © Studio naama.